Projektbeschreibung
Sanierung und Erweiterung der Grund- und Musikschule “Albert Schweitzer”, Gemeinde Meran 2007 – 2020


Projekt

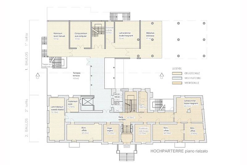
Das um die Wende zum 20. Jahrhundert erbaute, ursprünglich als Hotel geplante viergeschossige Schulgebäude in Meran beherbergt in den unteren Geschossen die Grundschule „Albert Schweitzer“ und in den beiden oberen Stockwerke die Musikschule. Um dem extremen Platzmangel der Musikschule sowie den wachsenden Raumbedürfnissen der Grundschule Rechnung zu tragen, und um ferner den geltenden Brandschutzbestimmungen sowie dem Behindertengesetz zu entsprechen, wurde das nördliche Nebengebäude abgebrochen und durch einen um ein Geschoss niedrigeren Neubau ersetzt. Dieser wird künftig von den Grundschülern genutzt, während der Altbestand weitestgehend der Musikschule vorbehalten bleibt. Die geschichtsträchtige Fassade des Bestandes steht nun wieder gänzlich frei und wird saniert. Der Altbau ist über eine verglaste Brücke mit dem Neubau verbunden. Nach Projektende besitzt der gesamte Komplex Klimahaus A-Standard. Er bietet dann Platz für zehn Grundschulklassen sowie 850 Musikschüler.

Das Gesamtprojekt wird in zwei Bauabschnitten realisiert. Mit der ersten Baustufe wurde
2008 begonnen. Sie soll 2010 abgeschlossen werden. In diesem Zeitabschnitt wird der Erweiterungsbau erstellt. Die zweite Phase ist dann für die Jahre 2011 bis 2013 vorgesehen,
in denen die Sanierung des Bestandes erfolgen soll. Dieser versetzte Zeitplan wurde gewählt, um den Grundschulbetrieb ungestört aufrecht erhalten zu können.

Konzept
Nach Bauende gelangen die Schüler beider Schulen über einen zentral situierten Eingang in den jeweiligen Gebäudeteil. Das Erdgeschoss des Neubaus ist gegenüber den oberen Geschossen zurückversetzt. Dadurch ergibt sich ein wettergeschützter Freiraum, der vor allem als Außenbereich der angrenzenden Mensa genutzt werden kann. In den Klassenzimmern sorgen großzügige Fensterflächen für eine optimale Belichtung. Grund- und Musikschule besitzen sowohl eigene als auch gemeinsam genutzte Bereiche. Letztere sollen als Orte der Begegnung die Zusammenarbeit und den Austausch beider Schulen begünstigen. Dies betrifft u.a. die Turnhalle, aber auch die Aula und den Musiksaal im Dachgeschoss, der für gemeinsame Konzerte und andere schulische Veranstaltungen zur Verfügung steht.

 

 

 

 

<<Schulen>>